Outdoor sauna in 3 sizes
The modern garden sauna CUBUS is available in three fixed sizes: as a compact sauna-only solution (M), as an outdoor sauna with vestibule (L) or with a spacious relaxation area (XL). There are two exterior panelling options to choose from: CUBUS NATURA: in an elegant rhombus wood profile and CUBUS TRESPA with a robust laminate panel in the colour of your choice. (Prices start from 29,000 €). Delivery is by car crane: there is no solution which is more comfortable…! Made in Germany. For over 50 years.
Fixed size, free design
The CUBUS design garden sauna is available in three optimum sizes (M, L, XL): what they all have in common is that they will cut a really fine figure in your garden. The interior design of the sauna itself is built in your desired wood and optionally equipped as a Finnish sauna or bio sauna. If necessary, the floor plan can be mirrored (e.g. with entry on the other side).
There are two options to choose from for the exterior cladding: The CUBUS NATURA version in rhombus profiled wood with the shadow gap results in a timeless, linear design. Alternatively, as CUBUS TRESPA, the exterior cladding can also be designed with coloured Trespa® panels: this is a high-quality, particularly robust HPL laminate panel that is used for decorative facade designs. Neither wind, water nor sun have any effect on the panel surface, so that your outdoor sauna retains its well-kept appearance for many years without maintenance.
Our garden sauna was optimally planned by corso and set up by truck crane. Everything 1a.
Garden sauna: sizes and prices
CUBUS M:
the compact outdoor sauna.
The Garden Sauna CUBUS in size M measures 2.70 m x 2.50 m: The ideal dimensions for a compact garden sauna. This outdoor sauna is equipped with a glass entrance door and a glass partial glazing on the side. With this solution, only the upper area was deliberately glazed, so that you can relax in the sauna largely protected from view, depending on the location. The sauna control is located directly in the interior of the sauna.
In order not to allow the sauna to cool down too much even in the cold season, an infrared emitter ensures the necessary basic temperature.
Price: from 29,000 Euros plus delivery. The delivery is done ready assembled by car crane directly into your garden or on your terrace.
CUBUS L:
outdoor sauna with vestibule.
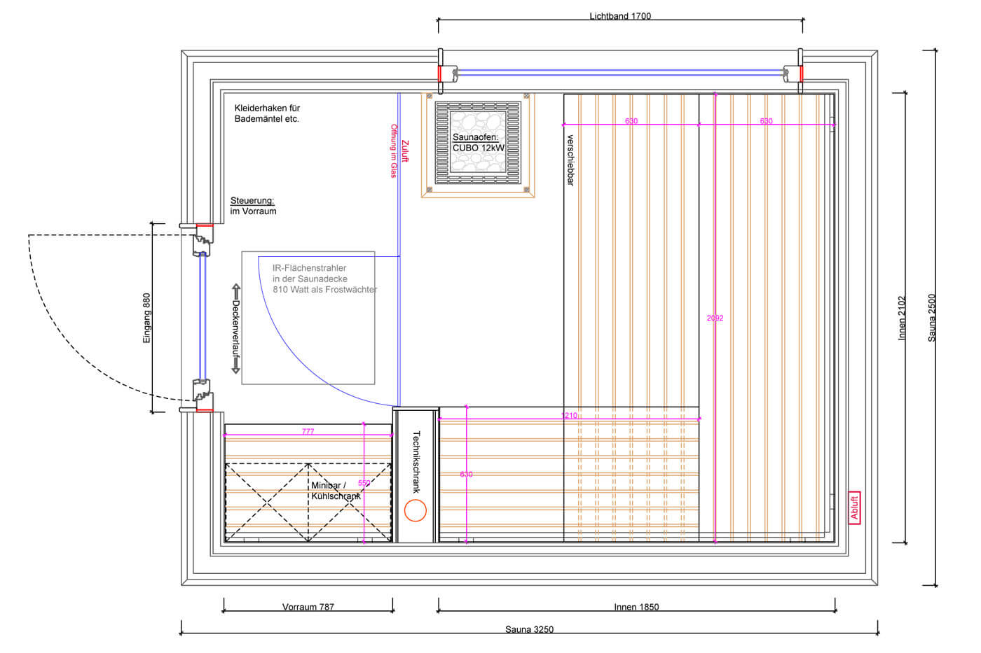
The garden sauna CUBUS in size L measures 2.50 x 3.25 m. This outdoor sauna is additionally equipped with a small vestibule and a bench in it (under which a small refrigerator can optionally be accommodated).
Opposite the bench, coat hooks can be attached to hang the bathrobe. In the vestibule, an infrared surface spotlight on the ceiling ensures a pleasant temperature. A glass door then leads from the entrance to the sauna. Through the partial glazing of the sauna on the side you can enjoy the view of nature.
Price: from 35,000 Euros plus delivery. The delivery is done ready assembled by car crane directly into your garden or on your terrace.
CUBUS XL:
outdoor sauna with relaxation area.
The garden sauna CUBUS in size XL measures 2.70 x 5.22 m. In addition to the sauna, this outdoor sauna has a spacious relaxation area: here you can choose to accommodate your own wellness loungers or we can optionally equip the outdoor room with a suitable, custom-made daybed. In addition, there is enough space for a shelf with integrated minibar and ample storage space for sauna towels and sauna accessories.
The solution is particularly generous due to the over-corner glazing of the relaxation area and the glass entrance door. The infrared emitter on the ceiling of the resting area provides a pleasant warmth.
The sauna itself also offers plenty of space to relax together. The sauna is glazed towards the relaxation room, so that you can enjoy the view and still sauna quite protected from external view.
Price: from 45,000 Euros plus delivery. The delivery is done ready assembled by car crane directly into your garden or on your terrace.
Your sauna is a purchase for life. We take a lot of time to give you the best advice.
Building permit garden sauna
In order to be able to implement your outdoor sauna to the desired extent and at the right location, a building permit may be required. Depending on the country/state, different specifications may apply to the size (converted space in m3 or floor area in sqm), to the construction lines and to the type of use. All information can be found in the article BUILDING PERMIT >
On the construction side, the prerequisites are a fixed, flat surface that can be reached by heavy-duty crane (up to 25 m range are usually no problem) and a neat transfer point of the power supply lines. Here you will find more tips on planning a garden sauna >
A great sense of design.
Why corso…? Because we don’t just plan, we build your project with 100 % passion. Talk to us and we will infect you with our passion for saunas.
Tailor-made unique pieces.
A great sense of design.
Craftsmanship with heart / soul.
Service & assembly.
Personal consultation.
Best sauna woods.
Sauna Manufactory
Our passion is the design and construction of your sauna project. But what is special about corso? Take a look behind the scenes…
Garden sauna CUBUS: Design and Quality
The puristic design with the noble, durable Rhombus exterior cladding forms the basis for the appealing overall look of this design garden sauna. The advantage: the high-quality wooden facade made of Rhombus profiled wood is highly resistant, so that you will enjoy your own garden sauna for a long time with minimal maintenance. As an alternative to rhombus cladding, the CUBUS garden sauna can also be designed with plain Trespa panels in the exterior cladding.
We plan and manufacture the interior design of your garden sauna individually according to your wishes. The design is very versatile: basically, any indoor sauna design that you can find on our pages can be integrated into the CUBUS garden sauna as a sauna design. No matter what your desired sauna looks like, our team will be at your side with the planning.
Convince yourself of the corso quality – best when visiting one of our showrooms.
Garden sauna inspirations
Discover garden sauna ideas, planning tips and sauna information. In the gallery you will find the most beautiful sauna ideas for your project. Everything you see can be freely combined. Tell us what you like – then we develop your very own dream garden sauna.
Directly from the sauna manufacturer
Bespoke garden sauna: Individual solutions with high design standards are the great strength of corso. With more than 50 years of experience, we as a premium sauna manufacturer realize your perfect, individual oasis of well-being.
Our tip: Visit the corso sauna exhibition, it’s worth it! We advise you comprehensively on your project and show you all the design possibilities. You can see, feel and smell your desired wood for the sauna… and we are already looking forward to infecting you with our sauna passion.






















