Offre de sauna
Nous vous proposons volontiers ce sauna comme un sauna planifié et «prêt à commander»: tout est parfaitement coordonné, de sorte que vous obtenez un sauna parfaitement pensé. Vous pouvez commander cette cabine directement (délai de livraison après accord).
Sauna finlandais classique avec revêtement intérieur en épicéa nordique (revêtement extérieur à tremble). Les bancs sont faits de bois de tremble clair – un bois de sauna idéal, très uniforme, qui ne se réchauffe pas si fortement.
Prix complet comprenant poêle, contrôle, éclairage et accessoires: 5.874 €
(départ usine)
Détails de cette offre de sauna:
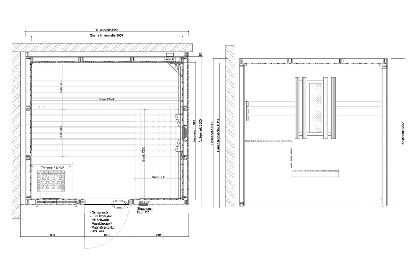
- Dimensions: B = 220 cm, T = 200 cm, H = 200 cm
- Revêtement intérieur: Bois profilé épicéa 14 mm, posé à la verticale
- Revêtement extérieur: Bois profilé tremble 15 mm, vertical
- Intérieur: Bancs de tremble
- Porte: Porte en verre entier sans seuil avec fermeture magnétique réglable
- Equipement: poêle EOS Thermat (suspendu mur, finnois) 7,5 kW, contrôle sauna EOS Econ D2
- Éclairage: Lampe en céramique avec écran d’angle en tremble
- Plan avec répartition bancaire exacte, etc.: voir le dessin ci-dessous
- le sauna peut être reflété si nécessaire (poêle à droite au lieu de gauche de l’entrée), sans supplément
Équipement supplémentaire optionnel (comme indiqué sur les photos):
- Fenêtre d’isolation fixe: 316 €
- Projecteur infrarouge 350 watts avec dossier à ailes et détecteurs: 909 €
- Équipement avec bio-four EOS Bio Thermat 7,5 kW: 985 €
Le prix du sauna normal avec toutes les options : 8.084 €
(départ usine)
Le sauna, c’est sain
Depuis que nous avons notre sauna corso, je suis beaucoup plus détendue.
Sabine Schneider








