Nous vous proposons volontiers ce sauna comme un sauna planifié et «prêt à commander»: tout est parfaitement coordonné, de sorte que vous obtenez un sauna parfaitement pensé. Vous pouvez commander cette cabine directement (délai de livraison après accord).
Sauna design lumineux avec porte entièrement vitrée et élément en verre sur la face avant. Une décoration intérieure de valeur, entièrement en bois de tremble clair. Eclairage indirect du dossier par LED, la couleur peut être changée par télécommande.
Prix complet comprenant poêle, contrôle, éclairage et accessoires: 13.880 €.
(départ usine)
Détails de cette offre de sauna design:
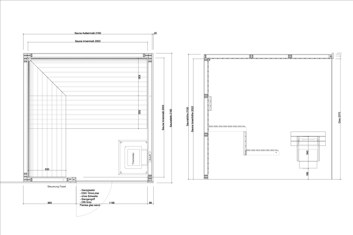
- Dimensions : L =216 cm, P = 216 cm, H= 210 cm
- Porte: porte entièrement vitrée, charnière de porte à gauche, plus un élément vitré fixe
- Intérieur: bancs arrondis en tremble, lambris intérieur en bois profilé de tremble
- Revêtement extérieur: au choix en bois profilé de tremble clair ou en plaques de plâtre (contrairement à la photo, le sauna est revêtu à l’extérieur de bois thermo)
- Chauffage du sauna: EOS Bi-O-Tec 9 kW (poêle de sauna combiné, peut être utilisé soit comme un sauna finlandais soit comme un sauna bio chaud et humide), contrôle: Fasel
- Extra spécial: éclairage LED indirect avec changement de couleur, contrôlable par télécommande
- Éclairage: une lumière design pour le sauna (différent de la photo: deux lumières ont été installées ici pour l’exposition)
- Plan d’étage avec disposition des bancs, etc. voir dessin ci-dessous
- Le sauna peut être miroité si nécessaire (chauffage à gauche au lieu de celui à droite de l’entrée), sans frais supplémentaires
Le sauna, c’est sain
Depuis que nous avons notre sauna corso, je suis beaucoup plus détendue.
Sabine Schneider








