Diese Sauna bieten wir Ihnen “fix-und-fertig” geplante Sauna an: alles ist optimal aufeinander abgestimmt, so dass Sie eine perfekt durchdachte Sauna erhalten. Diese Kabine können Sie direkt ordern (Lieferzeit nach Absprache). Klassische, finnische Sauna mit Innenverkleidung aus nordischer Fichte. Die Bänke und auch die Außenverkleidung sind aus hellem Espenholz gefertigt – ein ideales, sehr gleichmäßiges Saunaholz, das sich nicht so stark aufheizt.
ANGEBOT inkl. Ofen, Steuerung, Licht, Zubehör: 5.874 € inkl. MwSt., ab Werk
[alter Listenpreis: 6.910 €]
Details zu diesem Sauna Angebot:
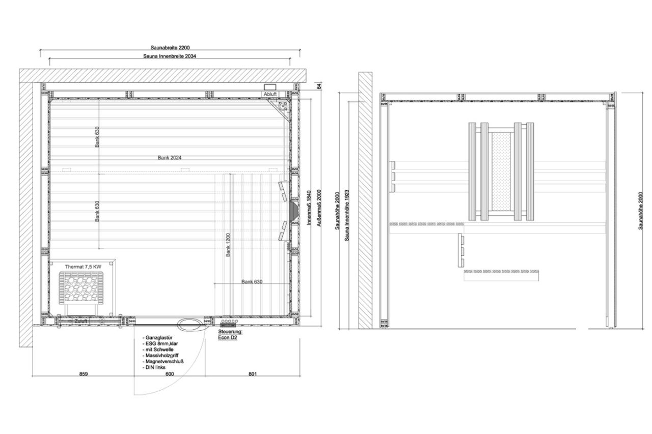
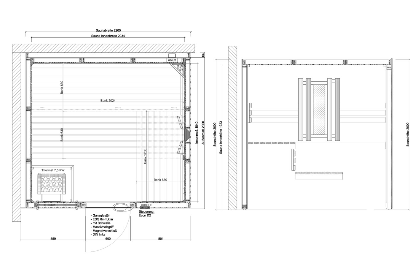
- Abmessungen: B = 220 cm, T = 200 cm, H = 200 cm
- Innenverkleidung: Profilholz Fichte 14 mm, senkrecht verlegt
- Außenverkleidung: Profilholz Espe 15 mm, senkrecht
- Inneneinrichtung: Bänke aus Espe
- Tür: Ganzglastür ohne Schwelle mit einstellbarem Magnetverschluss
- Ausstattung: Ofen EOS Thermat (wandhängend, finnisch) 7,5 kW, Saunasteuerung EOS Econ D2
- Beleuchtung: Keramikleuchte mit Ecklampenschirm aus Espe
- Grundriss mit exakter Bankaufteilung etc.: siehe unten stehende Zeichnung
- die Sauna kann bei Bedarf gespiegelt werden (Ofen rechts statt links vom Eingang), ohne Aufpreis
Optionale Zusatzausstattung (wie auf den Fotos gezeigt):
- feststehendes Isolierglasfenster: 316 Euro
- Infrarotstrahler 350 Watt mit Flügel-Rückenlehnen und Taster: 909 Euro
- Ausstattung mit Bio-Kombiofen EOS Bio Thermat 7,5 kW: 985 Euro
ANGEBOT mit allen Optionen: 8.084 €
(inkl. MwSt., ab Werk)
Gesund mit Sauna
Seitdem wir unsere corso Sauna haben, bin ich viel entspannter.
Sabine Schneider
KUNDEN FEEDBACKS











