Diese Sauna bieten wir Ihnen als „fix-und-fertig“ geplante Sauna an: alles ist optimal aufeinander abgestimmt, so dass Sie eine perfekt durchdachte Sauna erhalten. Dieses Modell können Sie direkt ordern (Lieferzeit nach Absprache). Helle Designsauna mit Ganzglastür und Glaselement an der Frontseite. Wertig gearbeitete Innengestaltung, komplett in hellem Espenholz. Indirekte LED Rückenlehnenbeleuchtung, die Farbe kann per Fernbedienung gewechselt werden.
ANGEBOT inkl. Ofen, Steuerung, Licht, Zubehör: 13.880 € inkl. MwSt., ab Werk
[alter Listenpreis: 16.329 €]
Details zu diesem Design Sauna Angebot:
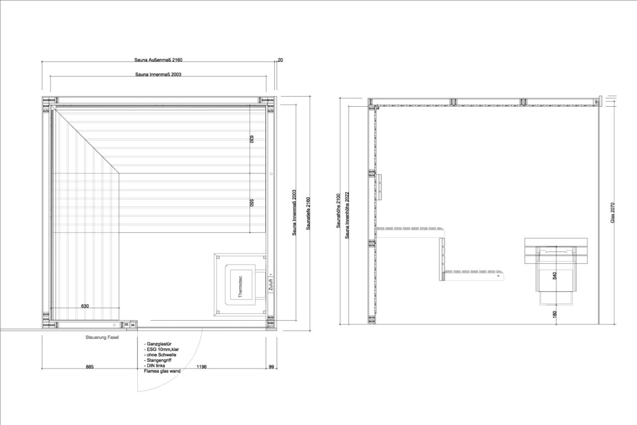
- Abmessungen: B =216 cm, T = 216 cm, H= 210 cm
- Tür: Ganzglastür, Türanschlag links, plus ein feststehendes Glaselement
- Inneneinrichtung: gerundete Bänke aus Espe, Innenverkleidung aus Espe Profilholz
- Außenverkleidung: wahlweise in hellem Espe-Profilholz oder Rigips (abweichend vom Foto, dort ist die Sauna außen mit Thermoholz verkleidet)
- Saunaofen: EOS Bi-O-Tec 9 kW (Kombisauna, wahlweise als finnische Sauna oder feucht-warme Biosauna nutzbar), Steuerung: Fasel
- besonderes Extra: indirekte LED Beleuchtung mit Farbwechsel, steuerbar über Fernbedienung
- Beleuchtung: eine Sauna Designleuchte (abweichend vom Foto: hier wurden für die Ausstellung zwei Leuchten eingebaut)
- Grundriss mit Bankaufteilung etc. siehe Zeichnung
- die Sauna kann bei Bedarf gespiegelt werden (Ofen links statt rechts vom Eingang), ohne Aufpreis
Gesund mit Sauna
Seitdem wir unsere corso Sauna haben, bin ich viel entspannter.
Sabine Schneider
KUNDEN FEEDBACKS











